Trefethen Beach Cottage

PROJECT TAGS

Cottages

ARCHITECTS

Winkelman

LOCATION

Peaks Island, Maine 2000

BUILDER

Bill Bunton

PHOTOGRAPHY

James R. Salomon

OVERVIEW

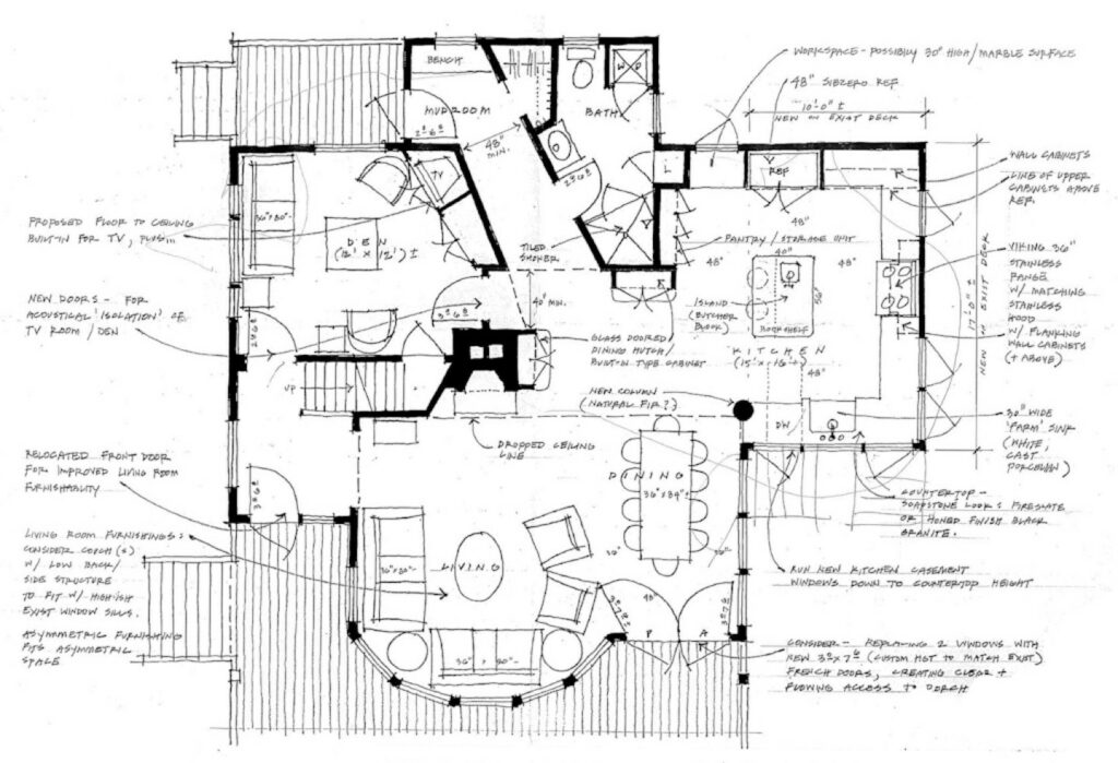
The existing cottage, which features original fir beadboard walls and ceilings, offers a west-facing view of the beach and harbor. Its main level plan consisted of segregated spaces that weren't oriented towards the water, and its kitchen was sparse and isolated.

Fullscreen icon

Fullscreen icon

Fullscreen icon

Fullscreen icon

Finding Daylight and Water Views

To connect and internally expand living and dining spaces, and to create a new and comfortable kitchen which is open to living/dining and shares the water view.

A primary goal was to clarify entry/mudroom circulation, giving daylight and water views as one enters. the new kitchen was located partially in a southerly expansion, giving it direct water views and daylight.

Fullscreen icon

Fullscreen icon

The Results

The living/dining/kitchen are individually defined but open and connected. The painted beadboard was woven into the natural beadboard interior for lightness and contrast.